Objektart
Adresse
Objektdaten
Details
Ihr Traum vom Eigenheim beginnt hier - Grundstück in Stapelmoor zu verkaufen!
Sie suchen ein passendes Grundstück für den Bau Ihres Ein- oder Zweifamilienhauses? - Dann finden Sie in Stapelmoor das Richtige!
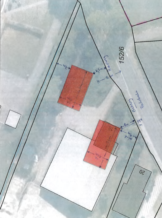
Auf einem großzügigen Bauplatz stehen Ihnen zwei Grundstücke mit einer Gesamtfläche von ca. 12.700 zur Verfügung.
Durch die Teilung ergibt sich eine Grundstücksfläche von ca. 6.000m². (Genaue Angabe nach Neuvermessung)
Das Grundstück grenzt im hinteren Bereich an weitläufige landwirtschaftliche Flächen, was für eine besonders ruhige und naturnahe Wohnlage sorgt.
Eine Bauvoranfrage wurde positiv vom Landkreis Leer bewertet für ein 2-3 Familienhaus.
Die Firma Junker & Auen übernimmt den Rückbau der noch vorhandenen Bebauung - darunter fallen eine alte Scheune, ein Güllekeller sowie weitere zurückgelassene Materialien und Gebäude.
Die Zufahrt erfolgt über das links angrenzende Grundstück und ist durch ein eingetragenes Wegerecht gesichert.
Nutzen Sie diese seltene Gelegenheit und verwirklichen Sie Ihren Wohntraum in Stapelmoor!
Das Grundstück befindet sich in einem ruhigen Stadtteil von Weener, einer Kleinstadt im Landkreis Leer in Niedersachsen. Der Stadtteil ist geprägt von gepflegten Vorgärten und freundlichen Nachbarn. In Weener befinden sich verschiedene Einkaufsmöglichkeiten. Schulen und Kindergärten sind vor Ort. Auch die Anbindung an öffentliche Verkehrsmittel ist gut, sodass man schnell in das Stadtzentrum gelangen kann.
Weener selbst ist eine charmante Stadt mit einer historischen Altstadt und einer malerischen Lage an der Ems. Hier finden Bewohner eine Vielzahl an Geschäften, Restaurants und kulturellen Einrichtungen. Das Stadtbild wird geprägt von liebevoll restaurierten Fachwerkhäusern und gemütlichen Plätzen, auf denen man verweilen kann. Auch die Umgebung lädt zu ausgedehnten Spaziergängen oder Radtouren ein.
Die Region um Weener ist bekannt für ihre idyllische Landschaft und die Nähe zur Nordsee. Die grünen Deichlandschaften und die zahlreichen Wasserwege bieten vielfältige Freizeitmöglichkeiten für Naturliebhaber. Zudem sorgen die maritimen Einflüsse für ein angenehmes Klima, das zu entspannten Stunden im Freien einlädt. In dieser Region fühlt man sich fernab von Hektik und Stress, und kann die Schönheit der Natur in vollen Zügen genießen.
Das Angebot ist freibleibend und unverbindlich. Es wurde nach den Angaben des Verkäufers erstellt. Zwischenverkauf und Irrtum sind vorbehalten. Eine Weitergabe an Dritte ist nicht gestattet.
Bitte haben Sie Verständnis dafür, dass es bei einer erhöhten Anfrage zu einem Bieterverfahren kommen kann.
Ansprechpartner
Telefax: +49 4951 9149846
info@immobilien-is.de
Ich bin damit einverstanden, dass mir Karten von Google angezeigt werden. Es gelten die Datenschutzbedingungen von Google (https://policies.google.com/privacy).
Ich bin einverstanden